Het probleem doet zich voor bij zowel ontvangst als ook bij zenden als de set een tijdje heeft aangestaan en op bedrijfs temperatuur is gekomen. Tegenstations melden dat het S-signaal niet wijzigd maar dat er plots gekraak en daarna ruis op het ontvangen audio ontstaat. Bij ontvangst aan mijn zijde treed hetzelfde verschijnsel op.
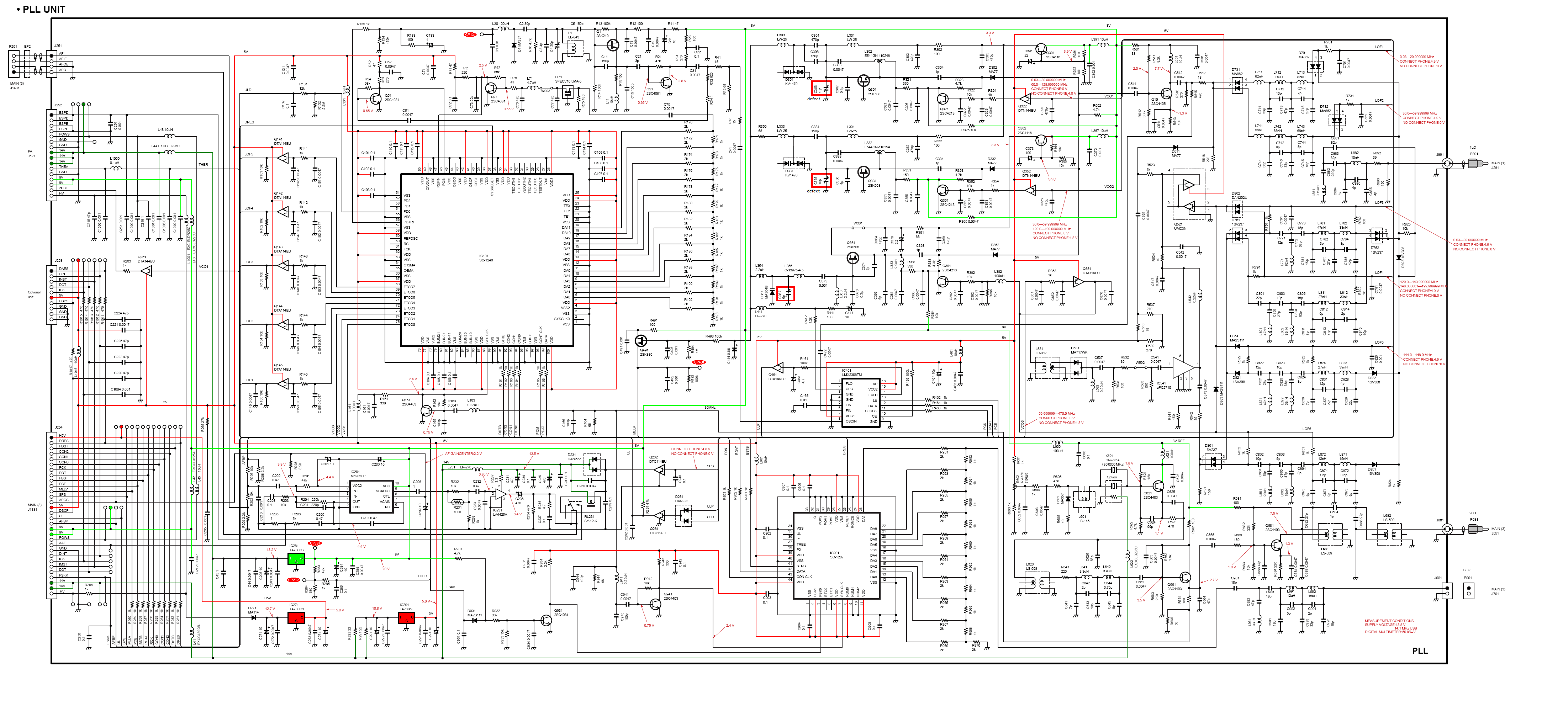
Ik heb er lang naar gezocht met behulp van een SSG die ik aansloot op de antenneingang en daar ongeveer 5 microvolt signaal injecteerde met 3kHz audio gemoduleerd. Na enige tijd wachten treed plotseling het probleem op, veel gekraak en ernorme toename van ruis is hoorbaar via de luidspreker van de set. Zoeken naar een slechte soldering of iets dergelijks levert niets op. Eerst verdacht ik de spanningsregelaars die er in de PLL zitten maar die blijken allen netjes de spanningen af te geven. Dus dan maar met een losse R10 ontvanger op ongeveer 216MHz luisteren of het ook daar hoorbaar is in het VCO. (bovenmenging) En ja hoor, het is daar ook duidelijk hoorbaar!
Al met al heeft het mij 3 avonden bezig gehouden om de fout te lokaliseren en ga binnenkort deze trimmers vervangen met nieuwe Murata exemplaren.
Gezien het feit dat deze meuk in een blikje zit van 3 x 2cm en de trimmers 4,5mm groot zijn zal dit nog een redelijke opgave worden en om niet meer schade aan te richtten zal ik waarschijnlijk wel nog wat meer onderdelen moeten verwijderen en daarna weer terugplaatsen.
Voor de geinteresseerden onder jullie plaats ik bij de posting nog wat documentatie die ik ervan gemaakt heb met behulp van het Service manual.
73, Stan

